04FJ02防空地下室出入口部建筑设计图集

04FJ02防空地下室出入口部建筑设计图集

版本:pdf高清电子版大小:4.13M

类别: 电子图书 系统:WinAll, WinXP

立即下载
  • 04FJ02防空地下室出入口部建筑设计图集 pdf高清电子版0

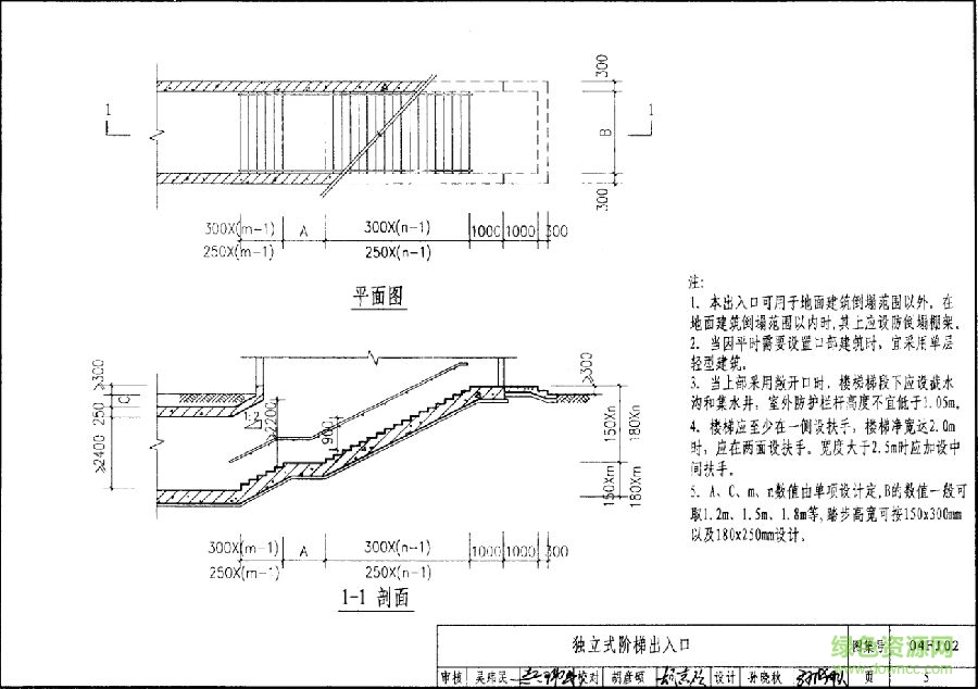
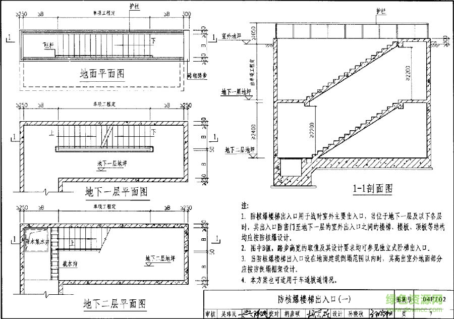
04fj02图集是一款防空图集,此版是地下室出入口设计图集,主要为大家讲解的是独立式、防壁式阶梯出入口、防核爆楼梯出入口、竖井出入口、自行车坡道出入口、汽车坡道出入口、物资坡道运输口等相关知识,欢迎有需要的朋友到绿色资源网下载使用!

04fj02图集简介

本国标04系列图集资料软件主要与“04FJ02,防空地下室,出入口部,建筑设计”相关。

04fj02图集样张

04fj02图集

04fj02图集

查看全部

更新时间:2016-08-20
网友评论
我要跟贴
取消
同类推荐
热门精品
最新应用