版本:pdf超清版大小:6.69M
类别: 电子图书 系统:WinAll, WinXP
立即下载0
181

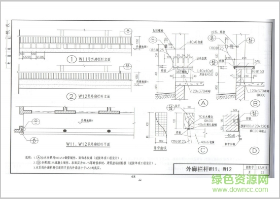
中南标11zj411图集主要介绍了阳台栏杆、栏板和外廓栏杆、栏板两大类的做法,是中南地区建造阳台、外廓栏杆的参照标准图集。快来绿色资源网下载吧!
适用范围
本图集适用于一般民用建筑和工业辅助建筑的阳台、外廓栏杆;也可用于中庭及回廊栏杆。
本图集带坐凳栏杆仅适用于室内外高差不大于450mm,用于临水建筑时,应符合《公园设计规范》(CJJ48-92)相关规定。
本图集适用于抗震设防烈度为8度及8度以下地区,当用于8度时,不应采用砖砌栏板。



查看全部
中南标准图集全称中南建筑标准图集,一般简称为中南标,是中南地区建造设计工程、设施、建筑物等的参照标准图集,主要供中南地区的建筑设计、施工人员参考使用,也是一些高校建筑专业的学习课程之一。