版本:pdf高清电子版大小:6.08M
类别: 电子图书 系统:WinAll, WinXP
立即下载0
181

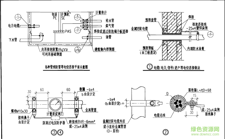
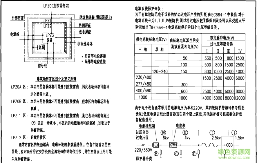
03d501 1图集是一款防雷安装图集,主要为大家讲解的是建筑物综合防雷系统方框图、防雷等电位连接图、避雷针的安装等相关知识,欢迎有需要的朋友到绿色资源网下载使用!
本国标03系列图集资料软件主要与“03D501-1,建筑物防雷设施安装,03D501-1建筑物防雷设施安装”相关,建筑物防雷,应根据其重要性,使用性质,发生雷电事故的可能性和后果,因地制宜地采取防雷措施,做到安全可靠,技术先进,经济合理,施工维护方便。


查看全部