版本:v5.4.4 安卓版大小:60.09M
类别: 生活服务 系统:Android
立即下载



MagicPlan软件是提供平面设计图服务的应用工具,界面干净简单,功能强大,不仅可以复原房屋的平面图,还可以测量您的房屋,支持多种格式输出,操作十分简单,适用范围广泛,尤其适合平面设计工作的人员使用。
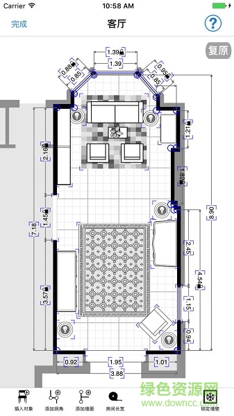
一款利用手机摄像头来制作室内平面图的软件。只要使用您设备上的摄像头,MagicPlan就可以测量您的房屋并且画出您的楼层平面图。这就和拍照一样简单!

-- 可以将您的楼层平面图以PDF、JPG或DXF格式输出
-- 可以作为交互性网页版本发布
-- MagicPlan利用设备中的传感器(陀螺仪和加速度计)以及摄像头。对于每一台设备,MagicPlan都需要进行校准才能正常工作。
-- 由于安卓设备的多样性,不是每一台设备都能支持房间捕捉功能。如果您的设备不支持但具备捕捉的功能,您可以在我们对您的设备进行支持前先自行进行校准。
MagicPlan是对于房地产经纪人、工艺操作人员、调停人、消防员、建筑师、验房人员、室内设计师、小型商户、家具零售商和其他相关行业人员
MagicPlan可以用来测量您的房间并通过拍摄照片来画出您房间的平面图。之后您可以通过添加物件、注释及属性来记录您的楼层平面图。之后您可以通过付费获取PDF、JPG、PNG、SVG、DXF及CSV格式文件,并以交互式网页的形式进行发布。使用MagicPlan每个人都可以在短短几分钟的时间内创作一张平面图。
查看全部