版本:v5.4.4 最新版大小:61.54M
类别: 常用工具 系统:Android
立即下载


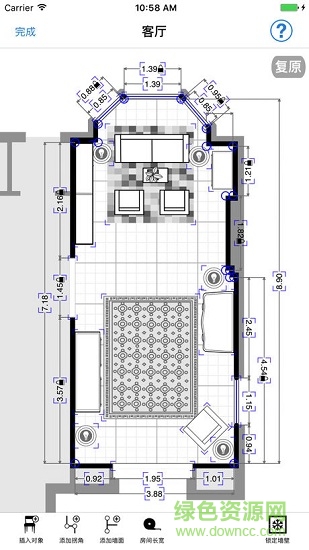
magicplan安卓版是一款专业的房屋测量绘图软件,通过手机的摄像功能直接进行测量,然后可以添加自己想要加入的部件,形成新的效果,喜欢的朋友可以到绿色资源网下载体验一下!
MagicPlan是对于房地产经纪人、工艺操作人员、调停人、消防员、建筑师、验房人员、室内设计师、小型商户、家具零售商和其他相关行业人员来说,最理想的一款应用软件。

MagicPlan可以用来测量您的房间并通过拍摄照片来画出您房间的平面图。
之后您可以通过添加物件、注释及属性来记录您的楼层平面图。
之后您可以通过付费获取PDF、JPG、PNG、SVG、DXF及CSV格式文件,并以交互式网页的形式进行发布。
使用MagicPlan每个人都可以在短短几分钟的时间内创作一张平面图。
无需测量;无需绘制;
无需移动家具;无需专业技术
优化体验,增强稳定性。
查看全部