版本:pdf高清电子版大小:14.58M
类别: 电子图书 系统:WinAll, WinXP
立即下载
05g517图集是由中国航空工业规划设计研究院主编的标准图集,全称应该是05G517轻型屋面三角形钢屋架,本图集代替了原来了98G517-1~5、98(04)G517-1~5系列,绿色资源网为大家带来05g517电子版图集下载,赶紧拿走吧。
本图集适用于非抗震区及抗震设防烈度≤9度地区、屋架下弦标高≤10m、柱距为4m、6m、7.5m、基本风压为0.5kN/m2和0.7kN/m2的一般单层工业厂房。屋面坡度有两种:坡度1:3时屋面材料采用波形瓦、瓦楞铁、压型钢板及夹芯板;坡度1:2.5时屋面材料采用混凝土瓦、水泥瓦,且只可用于6m、9m跨度的屋架。本图集屋架跨度为6m~18m五种;主要内容由屋架系统、支撑系统、檩条系统及相应的构件详图组成。相关设计、施工、监理人员可与图集G521-1~2、09J202-1、01J925-1等配合使用。




目录1
总说明2
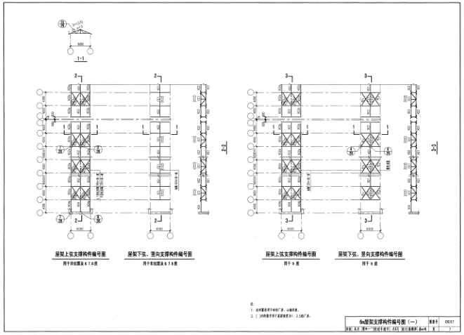
6m屋架支撑构件编号图(一)、(二)7
9m屋架支撑构件编号图(一)、(二)9
12m屋架支撑构件编号图(一)~(五)11
15m屋架支撑构件编号图(一)、(二)16
18m屋架支撑构件编号图(一)、(二)18
6m屋架檩条、拉条、撑杆构件编号图20
9m屋架檩条、拉条、撑杆构件编号图21
12m屋架檩条、拉条、撑杆构件编号图(一)、(二)22
12m屋架檩条、拉条、撑杆构件编号图(三)及拉条、撑杆详图24
15m屋架檩条、拉条、撑杆构件编号图(一)25
18m屋架檩条、拉条、撑杆构件编号图(一)26
15m、18m屋架檩条、拉条、撑杆构件编号图(二)27
安装节点图(一)、(二)28
上弦横向支撑SC1~SC12详图30
下弦横向支撑XC1~XC32详图32
竖向支撑CC1~CC6详图37
竖向支撑CC7~CC10详图,系杆XG11详图38
竖向支撑CC11~CC22详图39
系杆XG1~XG10详图42
檩条L4-1x~4x,L6-1x、2x详图43
檩条L6-3x,L7.5-1x、2x详图44
GWJ6-1A、C、D详图45
GWJ6-2A、C、D详图46
GWJ6-3A、C、D详图47
GWJ6-4A、C、D详图48
GWJ6-5A、C、D详图49
GWJ6-6A、C、D详图50
GWJ6-7A、C、D详图51
GWJ6-8A、C、D详图52
GWJ9-1A、C、D详图53
GWJ9-2A、C、D详图54
GWJ9-3A、C、D详图55
GWJ9-4A、C、D详图56
GWJ9-5A、C、D详图57
GWJ9-6A、C、D详图58
GWJ12-1A、B、C、D详图59
GWJ12-2A、B、C、D详图60
GWJ12-3A、B、C、D详图61
GWJ12-4A、B、C、D详图62
GWJ12-5A、B、C、D详图63
GWJ12-6A、B、C、D详图64
GWJ12-7A、B、C、D详图65
GWJ12-8A、B、C、D详图66
GWJ12-9A、B、C、D详图67
GWJ12-10A、B、C、D详图68
GWJ12-11A、B、C、D详图69
GWJ12-12A、B、C、D详图70
GWJ12-13A、B、C、D详图71
GWJ12-14A、B、C、D详图72
GWJ15-1A、B、C、D详图73
GWJ15-2A、B、C、D详图74
GWJ15-3A、B、C、D详图75
GWJ15-4A、B、C、D详图76
GWJ15-5A、B、C、D详图77
GWJ15-6A、B、C、D详图78
GWJ15-7A、B、C、D详图79
GWJ15-8A、B、C、D详图80
GWJ15-9A、B、C、D详图81
GWJ15-10A、B、C、D详图82
GWJ15-11A、B、C、D详图83
GWJ15-12A、B、C、D详图84
GWJ18-1A、B、C、D详图85
GWJ18-2A、B、C、D详图86
GWJ18-3A、B、C、D详图87
GWJ18-4A、B、C、D详图88
GWJ18-5A、B、C、D详图89
GWJ18-6A、B、C、D详图90
GWJ18-7A、B、C、D详图91
GWJ18-8A、B、C、D详图92
GWJ18-9A、B、C、D详图93
查看全部