03d501-4接地装置安装图集

03d501-4接地装置安装图集

版本:pdf高清电子版大小:3.83M

类别: 电子图书 系统:WinAll, WinXP

立即下载
  • 03d501-4接地装置安装图集 pdf高清电子版0

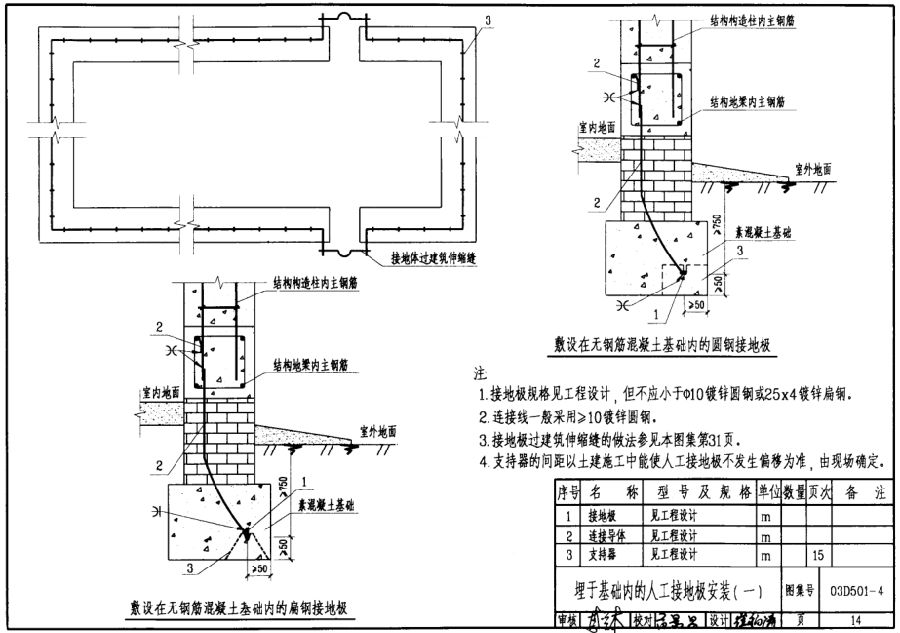
03d5014图集是03d501系列图集的其中一本,另外还包括03D501-1建筑物防雷设施安装、03D501-3 利用建筑物金属体做防雷接地装置,这里是03D501-4 接地装置安装,需要的赶紧收藏吧。

温馨提示

这里提供了03d5014图集高清版缺少了缺少36~48页,不过小编也提供了完整版,但是完整版的清新度不是很好,大家可以结合两本一起看。

03d5014图集样张


查看全部

更新时间:2020-10-31
网友评论
我要跟贴
取消
同类推荐
热门精品
最新应用