01S123贮水罐选用及安装图集

01S123贮水罐选用及安装图集

版本:pdf高清电子版大小:253KB

类别: 电子图书 系统:WinAll, WinXP

立即下载
  • 01S123贮水罐选用及安装图集 pdf高清电子版0

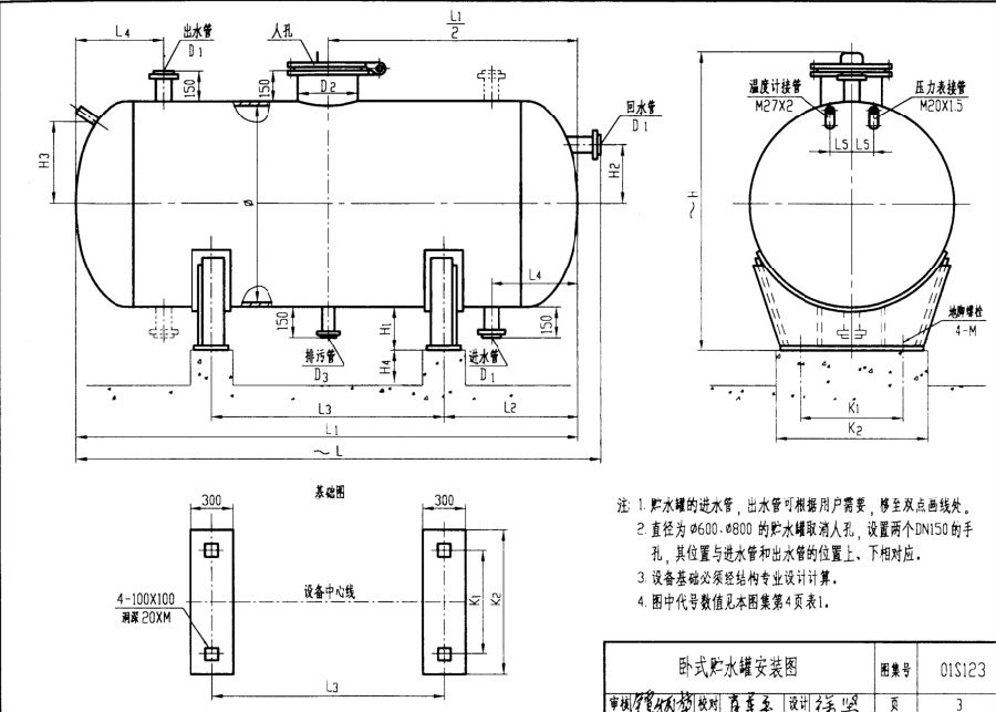
01S123贮水罐选用及安装图集是一份国标设计图集,本图集共9页,高清无水印,为0.5~20m3卧式贮水罐、1.0~10m3立式贮水罐产品的选用及安装作参考使用,需要的用户自行下载吧。

图集样张

01s123图集

01s123图集

01s123图集


01s123图集简介

该图集代替S152、S153

目录

目录1

说明2

卧式贮水罐安装图3

卧式贮水罐安装尺寸4

立式贮水罐安装图6

立式贮水罐安装尺寸7

立式贮水罐进、出水管方位示意图9

查看全部

更新时间:2016-01-28
网友评论
我要跟贴
取消
同类推荐
热门精品
最新应用