- 软件大小:413.62M
- 软件语言:中文
- 软件类型:国产软件
- 软件类别:免费软件 / 电子图书
- 更新时间:2017-12-07 17:46
- 运行环境:WinAll, WinXP, Win7, Win8
- 软件等级:

- 软件厂商:
- 官方网站:暂无
顶好评:50%
踩坏评:50

2.24M/中文/3.6
92.73M/中文/4.5
5.00M/中文/10.0
20.00M/中文/10.0
38.11M/中文/6.1
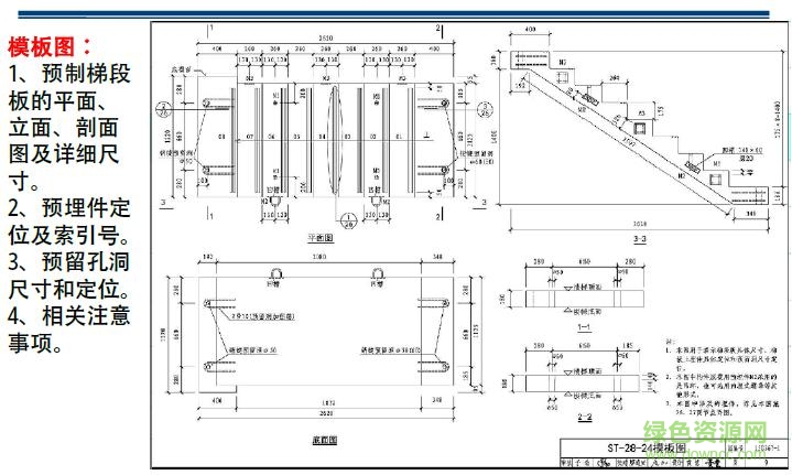
15g367_ 1图集能提供楼梯的选用表,各类楼梯详解介绍等信息,使用全新的各项设计规范进行建筑约束,从而能够使企业制作出不错的产品,设计的建筑产品必须能够达到各项抗震要求!
15G367-1《预制钢筋混凝土板式楼梯》国家建筑标准设计图集为建筑产业现代化国家建筑标准设计专项编制项目,适用于非抗震设计及抗震设防烈度为6~8度地区抗震设计的装配式混凝土剪力墙结构住宅。

本图集编制了剪力墙结构常用的预制钢筋混凝土板式双跑楼梯和剪刀楼梯,
设计选用相同类型不同净宽的楼梯时可调整选用或参考选用。
双跑楼梯和剪刀梯层高均选取了2800mm、2900mm、3000mm,
图集中归纳了常用建筑开间所对应的梯段板类型,
开间净宽双跑楼梯选取2400mm和2500mm,剪刀梯选取2500mm和2600mm;
本图集根据国家现行标准及实际工程经验编制,提供了常用尺寸构件的深化设计详图,符合当前国家建筑产业现代化发展的需要。
可供设计直接选用或参考使用,生产单位根据设计文件及图集进行生产,施工单位按设计文件及图集提供的连接构造施工。
请描述您所遇到的错误,我们将尽快予以修正,谢谢!
*必填项,请输入内容