- 软件大小:3.59M
- 软件语言:中文
- 软件类型:国产软件
- 软件类别:免费软件 / 电子图书
- 更新时间:2016-08-20 10:21
- 运行环境:WinAll, WinXP
- 软件等级:

- 软件厂商:
- 官方网站:http://www.downcc.com
顶好评:50%
踩坏评:50

2.24M/中文/3.6
9.99M/中文/8.2
4.31M/中文/7.1
3.95M/中文/8.0
92.73M/中文/4.5
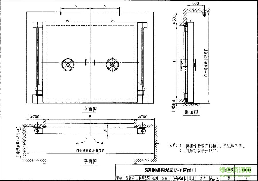
04fj04图集是一款非常实用的防空图集,此图集主要为大家讲解的是5、6级钢结构双扇防护密闭门、参数表、单扇防护密闭门等相关知识,绿色资源网小编为大家整理的是一份pdf高清电子版图集,欢迎有需要的朋友到本站下载使用!
本国标04系列图集资料软件主要与“04FJ04,防空地下室,钢制防护设备”相关适用于5、6级人民防空地下室,其它人防工程也可参照选用。


请描述您所遇到的错误,我们将尽快予以修正,谢谢!
*必填项,请输入内容